Производи
ДОМА > Производи
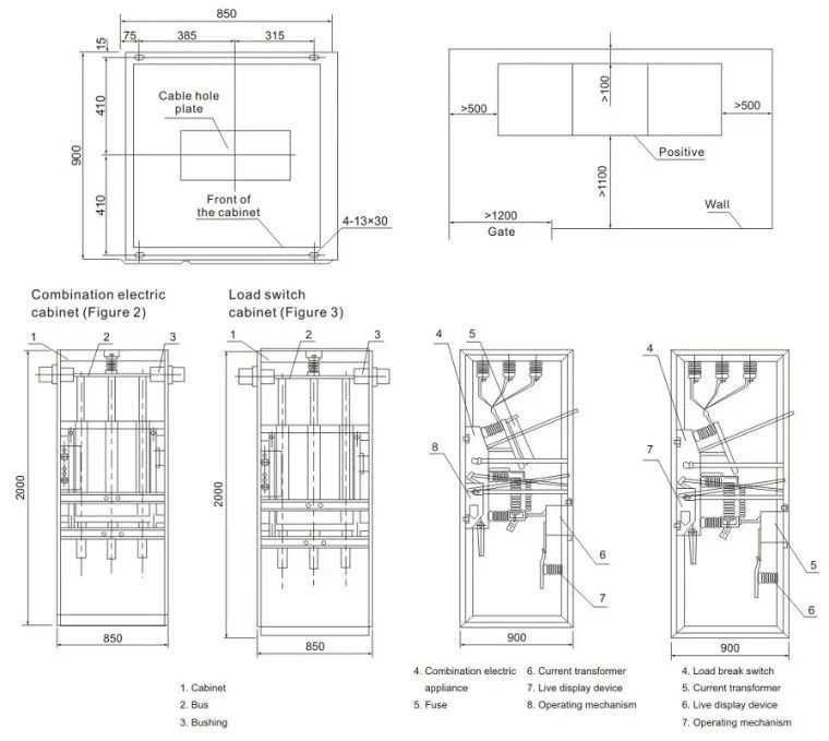
35kV Фиксна затворена прстенест прекинувач за дистрибуција
  • 35kV Фиксна затворена прстенест прекинувач за дистрибуција35kV Фиксна затворена прстенест прекинувач за дистрибуција

35kV Фиксна затворена прстенест прекинувач за дистрибуција

Comewill е професионален производител во Кина. Нашиот фиксен затворен прстенест расклопник од 35 kV за дистрибуција (во натамошниот текст „главна единица на прстенот“) за дистрибуција на енергија. Ова е високонапонска разводна постројка специјално дизајнирана за системи за дистрибуција на електрична енергија, погодна за потребите за набавка и избор на енергетски инфраструктурни проекти и е идеален избор за одлуки за набавки.

Како основна опрема за контрола и заштита на дистрибутивната мрежа, висококвалитетната 35kV фиксна затворена разводна прстенеста Comewill за дистрибуција произведена во Кина може стабилно да дава сигурна моќност во различни сценарија на примена, како што се проекти за изградба и реновирање на урбана електрична мрежа, индустриски и рударски претпријатија, високи згради и јавни објекти целосно ги задоволуваат основните барања на купувачите за перформанси на опремата.

Оваа главна единица на прстенот со фиксен дизајн стана префериран производ за набавка на модерен систем за дистрибуција на електрична енергија, нудејќи ви исплатлива конфигурација на енергетската инфраструктура.

Технички податоци

Сериски број Ставка Единица Податоци
1 Номинален напон kV 12 40.5
2 Номинална фреквенција Hz 50/60
3 Номинална струја A 630 630/1250
4 Номинална фреквенција на моќност издржлив напон (1 мин) Фази и на земјата kv 42 95
Изолирање на растојанија 48 118
Номинална молња импресивно издржи напон Фази и на земјата 75 185
Изолирање на растојанија 85 215
Издржлив напон на фреквенција на напојување (контрола и помошно коло) 2
5 Оценета струја за краткотрајно издржување kA 20/25 31.5
6 Номинална врвна струја за издржување kA 50/63 80
7 Времетраење на номиналната струја на куса врска s 4 4
8 Номинална струја на прекин на краток спој kA 20/25 31.5
9 Номинална струја на краток спој kA 50/63 80
10 Траење на лак s 1 1
11 Оценета оперативна секвенца
0-0,3s-CO-3min-CO
12 Изолациски гас
SF6
13 Годишна стапка на истекување % ≤ 0,01
14 Стандарден степен на заштита Запечатена кутија за гас
IP67
Куќиште за прекинувачи IP4X
15 Номинален инфлациски притисок MPa 0.03
Притисок на минимално функционално ниво 0.01
16 Номинален напон на напојување на помошното коло V DC 24, 48, 110, 220, AC220
17 Механички живот Автоматски прекинувач Операција 10000 11000
Прекинувач за изолација 5000 3000
Прекинувач за заземјување 5000 3000
18 Електрична издржливост на прекинувачот Операција 30(E2)
19 Губење на континуитетот на услугата
LSC2

Параметри на техничка работна средина

·Амбиентална температура: -10°C ~ +40°C
· Надморска височина: висок напон ≤1000m; Нисконапонски ≤2500m (прилагоден дизајн достапен за набавки преку опсег)
· Релативна влажност: ≤85%
·Сеизмички интензитет: ≤ Магнитуда 8
· Еколошки предуслови: Без опасност од пожар/експлозија, без сериозно загадување, без хемиска корозија, без насилни вибрации (локацијата за набавка мора да ги исполнува овие)

Преку неуморните напори на сите наши вработени, ние постојано го подобруваме управувањето со квалитетот за да се осигураме дека нашата фиксна затворена прстенеста разводна опрема од 35 kV за дистрибуција останува извор на доверба за нашите клиенти. Нашата цел е да им обезбедиме на клиентите најсеопфатен систем за тестирање и најсоодветни решенија, максимизирајќи го задоволството на клиентите. Ние се придржуваме до принципите на клиент прво, пазарна ориентација и ефикасност и континуирано го негуваме нашиот талент.

Hot Tags: главна единица со прстен со затворен метал, Кина, производители, фабрика, цена, 630A прекинувач за воздушно оптоварување, затворен гас LBS од 24 kv, прекинувач за прекинувач SF6, прекинувач со вакуум обложен со надворешен порцелан, Еднофазен вакуумски напон 20Virk Прекинувач за прекинувачи

Жешки тагови: 35kV фиксен затворен прстенест прекинувач за дистрибуција, Кина, производител, добавувач, фабрика, на големо, приспособен, на залиха, произведен во Кина, ниска цена, квалитет
Испрати барање
Контакт Инфо
  • Адреса

    бр.777 Wanweng Road, под-област Wengyang, Yueqing City, Wenzhou City, провинција Жеџијанг, Кина

  • Е-пошта

    hannah@comewill.com

Испратете барање до Comewill за разводни уреди, вакуумски прекинувачи, струен трансформатор. Добијте приспособени понуди, ниски цени или стручна поддршка од нашиот фабрички тим во Кина.
X
Ние користиме колачиња за да ви понудиме подобро искуство во прелистувањето, да го анализираме сообраќајот на страницата и да ја персонализираме содржината. Со користење на оваа страница, вие се согласувате со нашата употреба на колачиња. Политика за приватност
Отфрли Прифати